广谈大湾网

[装饰设计] 85平装修前后花了20万,全屋原木风清新又自然,非常舒适...

2025-11-11 15:44:46 31714 0

[复制链接]
啥设定 未绑定微信 发表于 2025-11-11 15:44:46 |阅读模式

啥设定 未绑定微信 楼主

2025-11-11 15:44:46

在一座城,拥有自己一间小屋,是两人三餐四季的开始。能通过两人的一起努力,拥有一套属于自己家的房子,真的很了不起,同时也很幸运。每个人对家的都自己的想法与需求,在装修的时候尽量要考虑家人的需求,装出一家人都满意的效果
屋主她家这套85两居室的房子前后装修花了20万,其中包含家具家电以及其他的东西,觉得还是比较值得,并且在正常的范围之内。按照屋主的喜爱,全屋打造原木风清新又自然,每个空间非常舒的效果,显得很有家的味道。整个空间装修比较简洁,电视墙都没有做任何造型,也找不出一点复杂的造型出来,看着都很喜欢。下面,给大家分享一下,希望大家能喜欢,也希望能给大家带来更多的装修灵感!
7a635e30bd1a012eb737b93d11c2411b.jpg
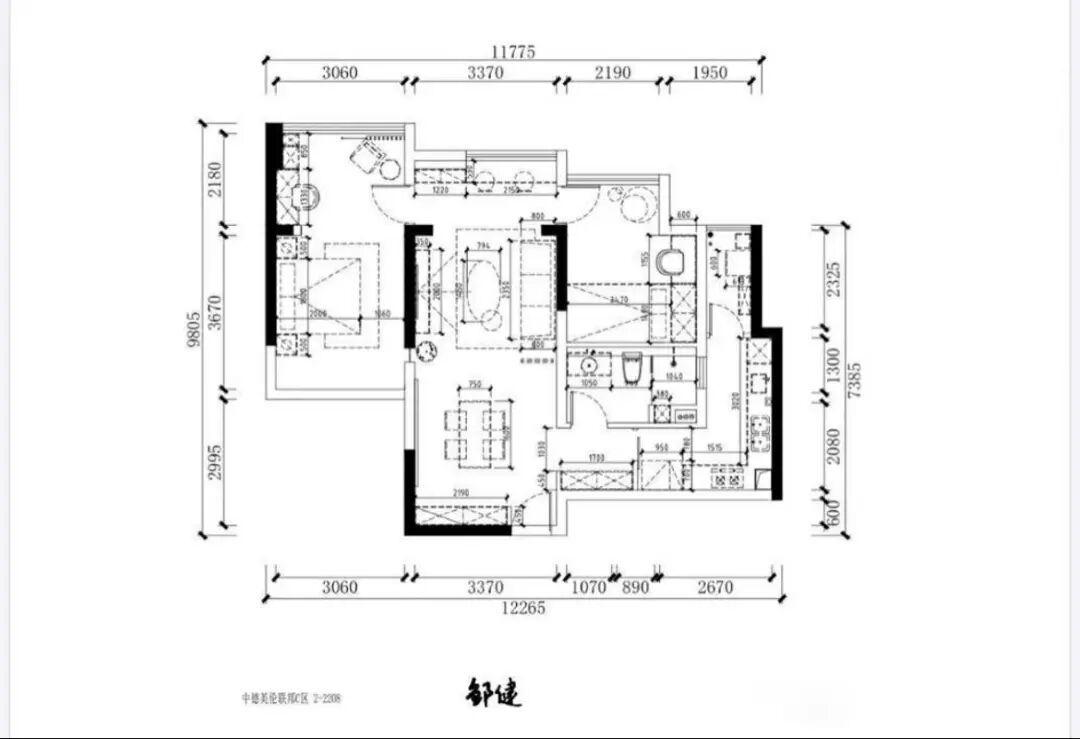
刚交付拿到手的户型其实不是那么完美,最终还是在原户型的基础之上改造户型。把卧室门整体移到了阳台,扩大了电视墙的面积,同时卫生间也扩大了,而且把生活阳台融入厨房,整个空间的布局更为合理,空间更通透,将空间最大利用化!
14047e0d4329cbc4c1542bfaa9023847.jpg
从入户大门进来就是餐厅了,没有玄关的说法。餐厅旁边设计了一个比较薄款的餐边柜,可以适当增加一些储物空间,同时不会让空间显得比较拥挤的感觉。墙上安装了两块隔板,可以摆放一些小摆件,同时可以挂水杯或者钥匙,这点设计真心不错,显得非常个性。布置了一张实木方形餐桌,款式还不错,非常极简。坐在这样的餐厅用餐,热腾腾的饭菜,一家人都觉得很幸福。墙上的超大挂画还没挂上去,也不影响哈。
b03eec0750b3973232c6f87e52d86407.jpg
换个角度看的话,选择的餐桌非常合适,如果布置圆形餐桌的话,稍微看着空间拥堵很多。整个空间都是原木风,给人一种清新又自然,很舒适的一种效果。
849e3be4d4d98fe354b86b5cbd280476.jpg
装饰画还是蛮不错,尺寸比较大,给人一种比较大气的感觉,真心不错。养着一只可爱的小狗,这小眼神小样子,太诱人啦!
5c216f42d8b3b6d90160be5c566f5414.jpg
鞋柜往这边布置了,也就是厨房和卫生间过道这边区域,刚好把仅有的空间利用起来。设计的鞋柜分为上下两层,最底下是留空位置,可以放一些常穿的鞋子。中间可以放一些比较常用的小东西。而且鞋柜门选择了是无拉手的设计,非常简洁,看着都很舒适。
faaf7bcab8fa40f17d9b8c10e78a3667.jpg
客厅与阳台打通,并且利用阳台区域设计了柜子,也设计了小小飘窗柜,更好把阳台空间利用起来。顶面安装了新风系统,即使在关窗的情况之下,也能保持室内空间交替,保持室内新鲜空气。全屋地面选择铺贴木地板没有瓷砖那种冷冰冰的干感觉,很舒适的一种效果。不做,电视墙没有做一点造型,直接刷的就是乳胶漆,简简单单。客厅还有一个亮点,无主灯的设计,真心不错,非常时尚。
a9a6b4cb69b337133070674f7eb7133f.jpg
客厅和餐厅是在一个空间,中间没有做任何的隔断,通过布置家具而划分两个空间。客厅布置的茶几为小圆形的造型,色彩搭配的效果还是蛮不错的哈。所有的家具都布置好了位置,打扫干干净净其实直接可以搬进来,一点问题都没有哈。前后花了20万,大家觉得效果还是蛮不错的吧!
2f64afbfb1b6f4e5469f9c42af5044b7.jpg
主卧也保持着整个空间比较简洁的特点,布置了一张双人大床,位置刚好合适。与阳台是打通的,更好增加了卧室的空间,显得空间非常宽敞,采光也极好啊。
11829c3272c600f1e04936745898a6f0.jpg
利用阳台的空间定制了非常实用的储物柜,可以提供多的储物空间,并且阳台空间不浪费。柜门其实就是一面平板,没有其他的造型。
92b858cf29ca8dff7705195d3f5909ff.jpg
次卧,其实也就是家里小孩房,定制了榻榻米,刚好把仅有的空间利用起来。旁边的书桌柜,到时候可以方便家里小孩写作业或者看书,位置刚好合适。
0e7a91156c8fdf21ff773e1ad067c199.jpg
卫生间做了干湿分离,洗澡冲凉的时候不会把整个空间给弄湿了。同时,选择安装了壁挂式的马桶,这样的马桶占用的空间小,颜值很高,也方便做保洁。直接网购的马桶,质量还不错,一家人都满意。马桶上面的位置,安装了一个吊柜,增加一些储物空间。LED镜子,更是让人喜欢啊!原本的空间其实没有那么宽敞,所以布局上做一些变动,还是很有必要的。
d0d89d886f5cc60c75e28a6a81d02732.jpg
厨房定制了“L”字型的橱柜,布局形成了“洗、切、炒”的顺序,使用非常方便。燃气灶质量还不错,以后不担心出现什么问题,包括安装的抽油烟机,质量都是蛮不错的呢。墙面选择铺贴的小白墙砖,非常好看,搭配起来很协调。
前后一共花了20万装修的两居室新房,打造出非常舒适的效果,全屋原木风清新又自然,看着都很羡慕。过段时间可以搬进来入住了,真的替他们一家感到高兴。对于这样的效果,你觉得会喜欢吗?
来源:简易装修、如有侵权请联系删除

回复

使用道具 举报

:
中级会员
:
未填写
:
未填写
:
未填写

主题59

帖子59

积分357

图文推荐

  • 鱼头炖汤,最忌鸡精味精!教你2个技巧,鱼

    今天做一锅鱼头豆腐汤,鱼汤奶白浓郁,只鲜不腥。

  • 鲜嫩到“跳舞”:解锁清蒸鲈鱼的零失败秘籍

    先得把主角——鲈鱼请上场。买鱼的时候,最好挑

  • 100元一碗的面馆后厨曝光,“网红店应接受

    近日,上海徐汇区市场监管局针对网红餐饮店展开执

  • 减肥也可以吃的小甜品,无油低糖不长肉,做

    今天要做的甜品是一道华夫饼,由于里边加了草莓果

  • 冬天气候干燥,建议多吃这3样食物,胶原蛋

    一、鱼皮——凉拌鱼皮鱼皮中所含的胶原蛋白,含有

  • 发布新帖

  • QQ客服

  • 微信公众号

  • 移动端

  • 返回顶部